





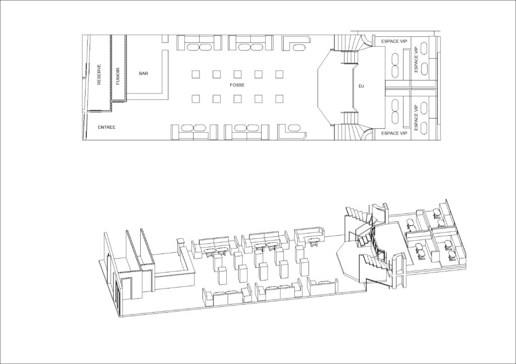
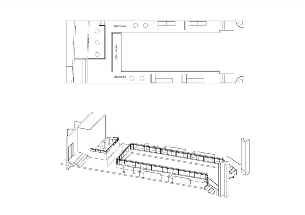
Salle d’événement, café-restaurant, salle de réunionc bureaux et logement.
Fond de commerce à remettre sous forme de vente de parts sociales de société comprenant en location l’ensemble d’un immeuble de 1000m² contenant une salle d’événement de 650m² (ancien théâtre) / un café-restaurant de 80m² (future terrasse extérieure de 200m2) / salle de réunion de 70m² / 2 bureaux de 50m² / appartement de 70m².
Libre de brasserie.
Bail commercial récent de 3 x 9 ans renouvelable.
Loyer 2574€/mois précompte immobilier compris.
Toutes autorisations en ordre.
GSM: +32485815803
